Quobim

We are a fully integrated team of Architectural and Engineering professionals willing to attend our clients in the creative process, development and realization of their projects.

Llámenos al +54 9 351 663-4643

Dr. Mariano Castex 224 X5003GGF, Córdoba, AR

info@quobim.com

Seleccione Idioma: [weglot_switcher]

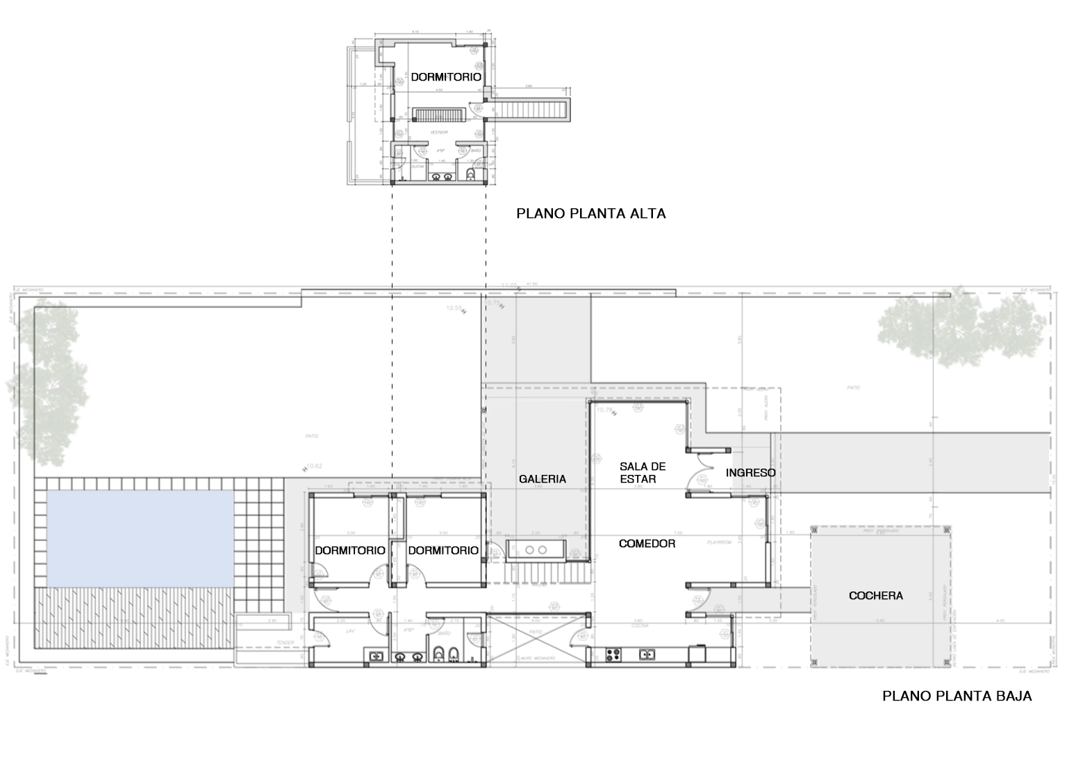
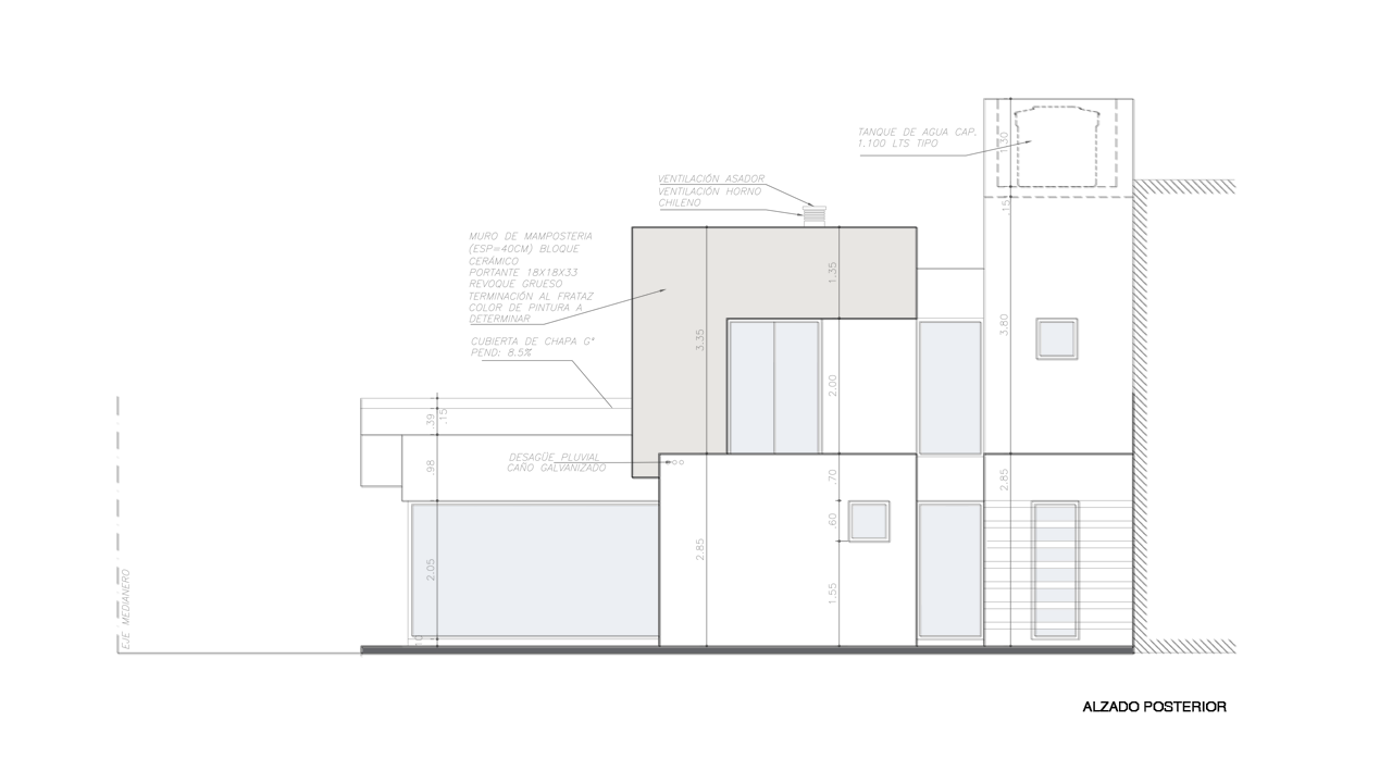
Casa Adrián

«This is the true nature of home - it is the place of peace; the shelter...». John Ruskin

Design / Construction / Construction Management

Area:  186 m2

Location:  La Calera  – Córdoba, Argentina

Year: 2013

Category:
Tags: