Quobim

We are a fully integrated team of Architectural and Engineering professionals willing to attend our clients in the creative process, development and realization of their projects.

Llámenos al +54 9 351 663-4643

Dr. Mariano Castex 224 X5003GGF, Córdoba, AR

info@quobim.com

Seleccione Idioma: [weglot_switcher]

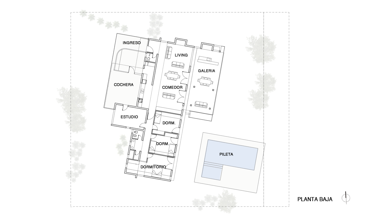
Casa BLP

DESIGN/CONSTRUCTION/CONSTRUCTION MANAGEMENT

 

Area: 220 m2

Location: Villa Allende - Córdoba, Argentina

Year: 2008

 

Category:
Tags: