Quobim

We are a fully integrated team of Architectural and Engineering professionals willing to attend our clients in the creative process, development and realization of their projects.

Llámenos al +54 9 351 663-4643

Dr. Mariano Castex 224 X5003GGF, Córdoba, AR

info@quobim.com

Seleccione Idioma: [weglot_switcher]

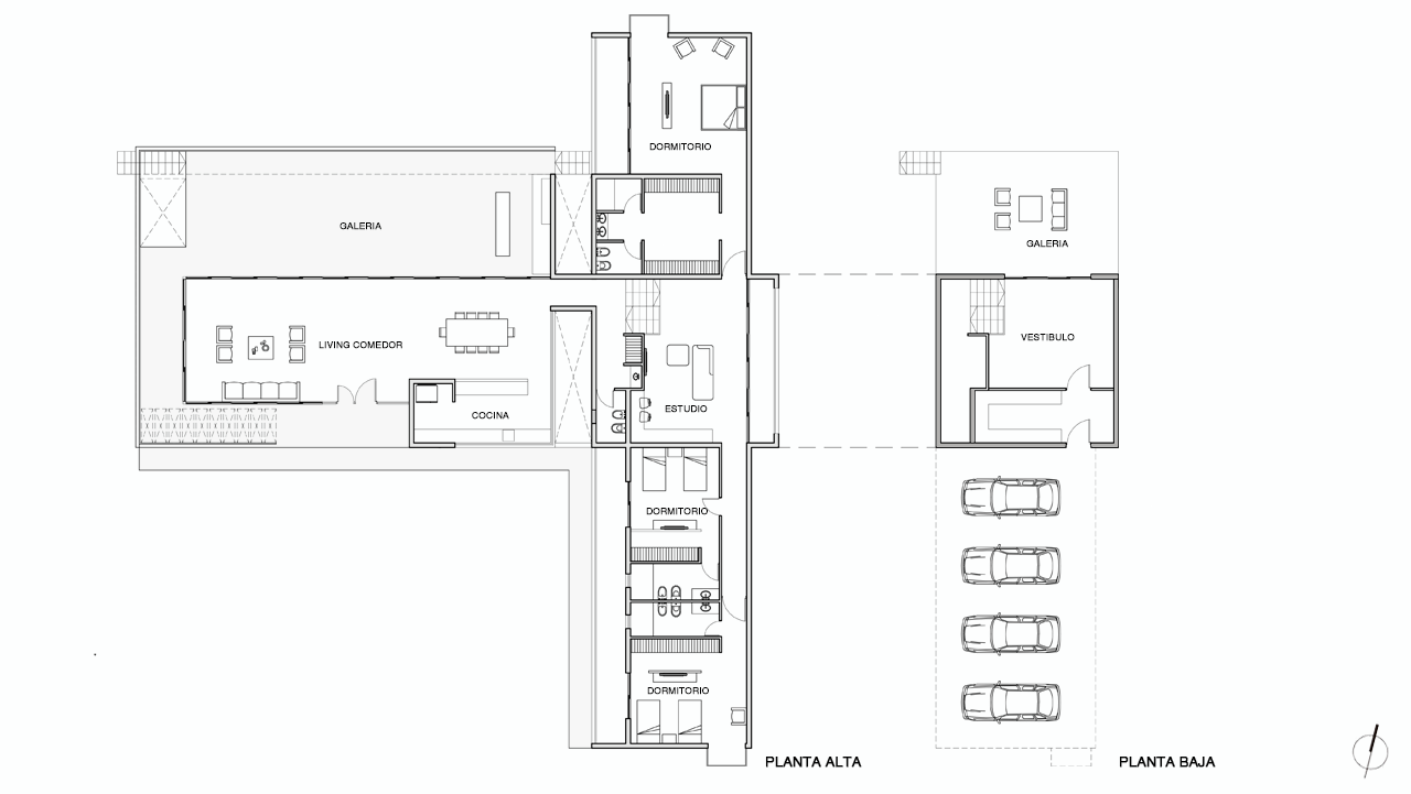
Casa Lucas & Euge

"For man and bird, the world offers many places to roost, but only one nest: his home". Oliver Wendell Holmes.

DESIGN / BIM MODEL

Area: 450  m2

Location: Córdoba, Argentina

Year: 2018

 

Category:
Tags: