Quobim

We are a fully integrated team of Architectural and Engineering professionals willing to attend our clients in the creative process, development and realization of their projects.

Llámenos al +54 9 351 663-4643

Dr. Mariano Castex 224 X5003GGF, Córdoba, AR

info@quobim.com

Seleccione Idioma: [weglot_switcher]

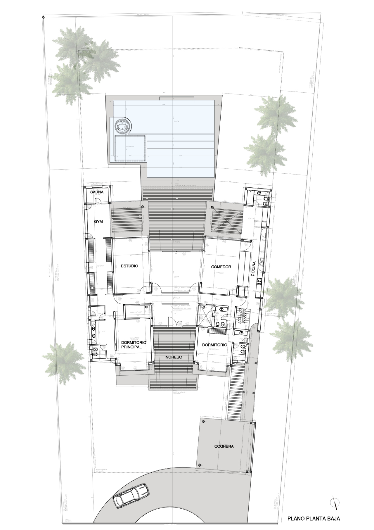
Casa Lucas y Monica

«Architecture has an interior motive: the idea of ​​creating a paradise. This is the sole purpose of our houses». Álvar Aalto

DESIGN

Area: 420m2

Location:  Córdoba, Argentina

Year: 2012

Category:
Tags: