Quobim

We are a fully integrated team of Architectural and Engineering professionals willing to attend our clients in the creative process, development and realization of their projects.

Llámenos al +54 9 351 663-4643

Dr. Mariano Castex 224 X5003GGF, Córdoba, AR

info@quobim.com

Seleccione Idioma: [weglot_switcher]

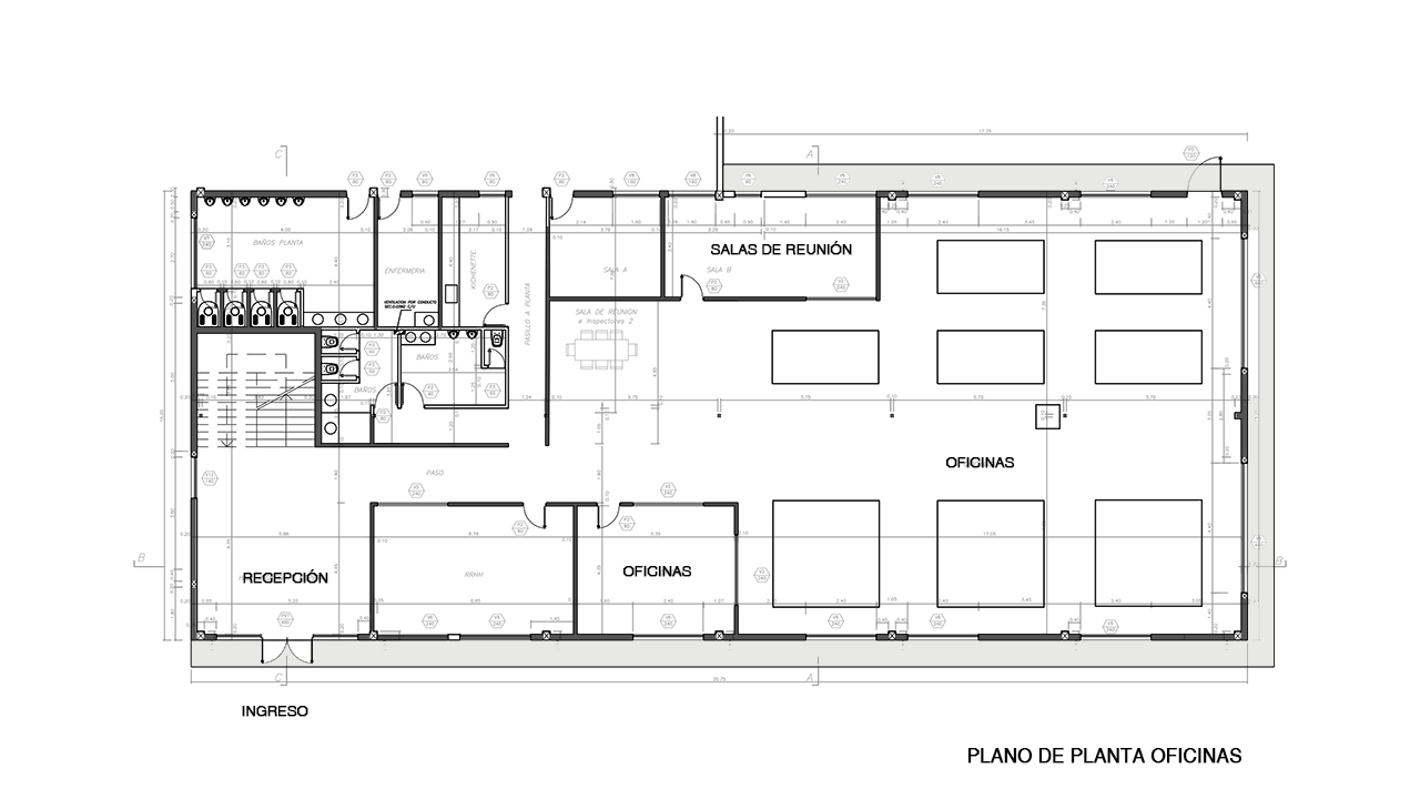
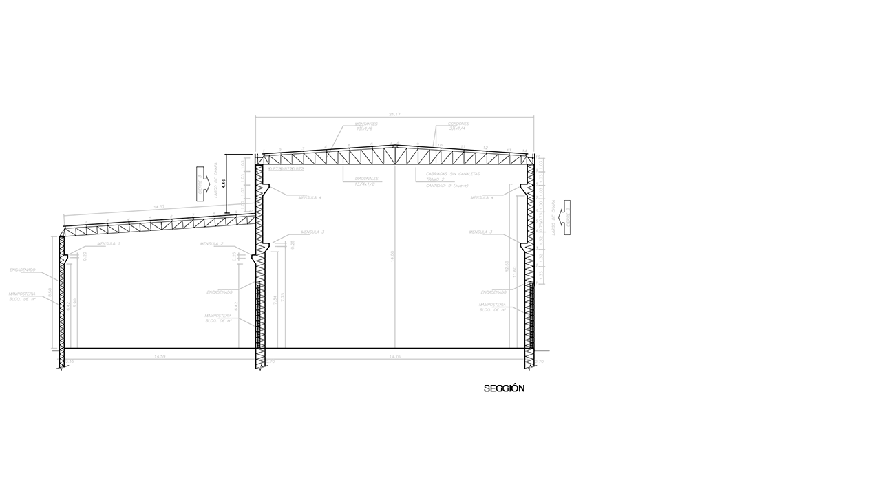
Planta Industrial de Transformadores

«Construction is the mother tongue of the architect. The archictect is a poet who thinks and speaks in terms of construction». Auguste Perret.

Design / Construction / Construction Management

Area: 4600 m2

Location:  Córdoba, Argentina

Year: 2019

Category:
Tags: