Quobim

We are a fully integrated team of Architectural and Engineering professionals willing to attend our clients in the creative process, development and realization of their projects.

Llámenos al +54 9 351 663-4643

Dr. Mariano Castex 224 X5003GGF, Córdoba, AR

info@quobim.com

Seleccione Idioma: [weglot_switcher]

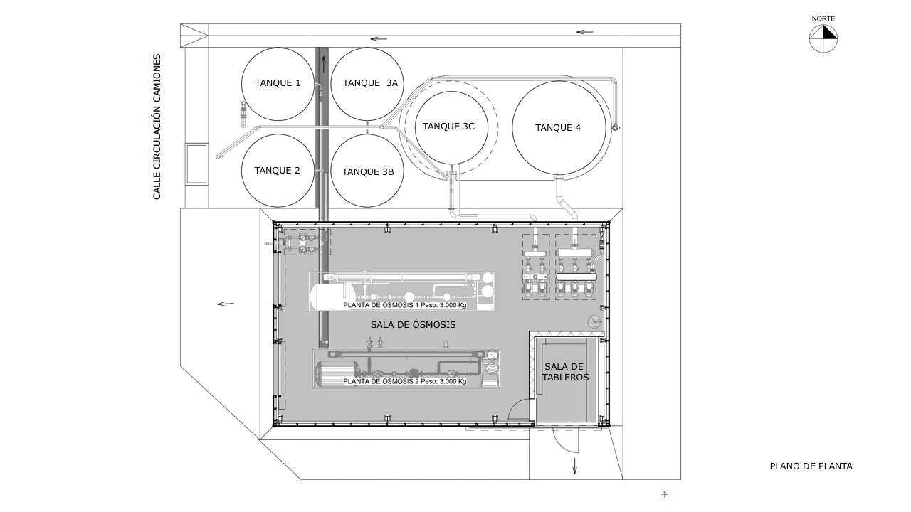
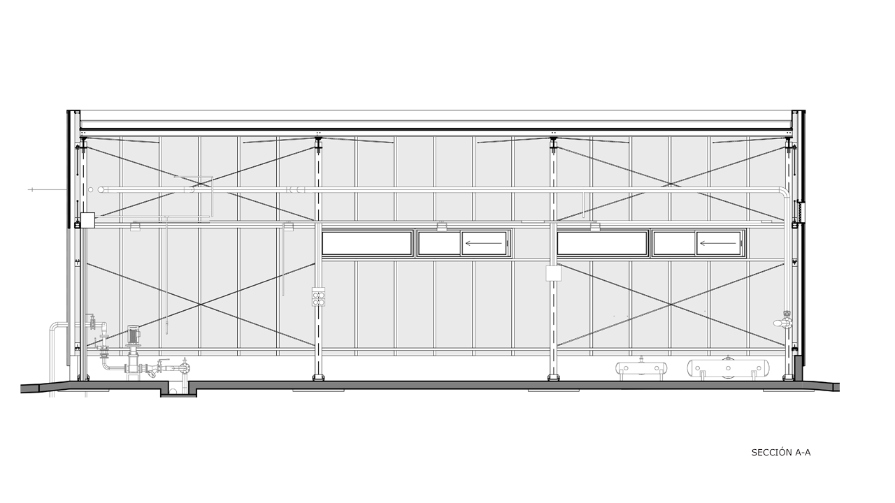
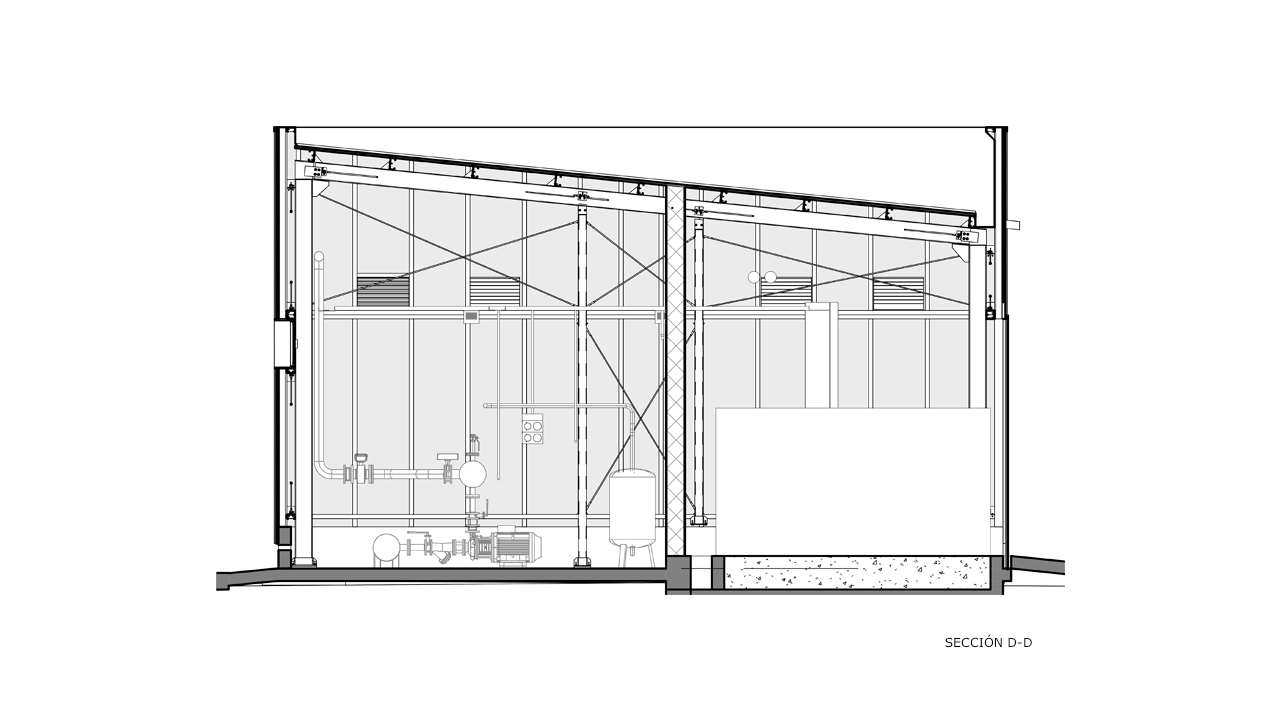
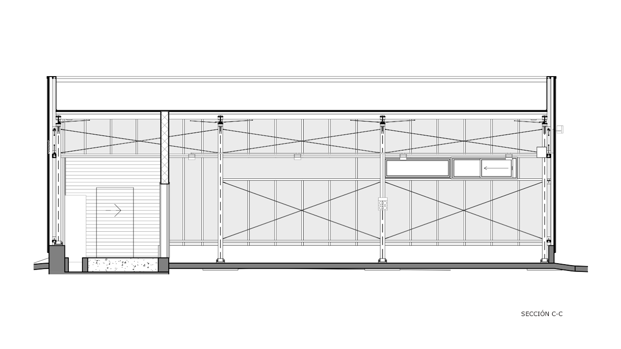
Sala de Osmosis

«Details are not the details; they make the product». Charles Eames

Design / Construction / Construction Management / BIM model & documentation

Area:  300 m2

Location: Parque Industrial Ferreyra – Córdoba, Argentina

Year: 2019

 

Photography in collaboration with Paula Ducant.

Category: