Quobim

Somos un Equipo Integral de Arquitectura e Ingeniería conformado por profesionales para el proceso de diseño, desarrollo y ejecución de sus proyectos.

Llámenos al +54 9 351 663-4643

Dr. Mariano Castex 224 X5003GGF, Córdoba, AR

info@quobim.com

Seleccione Idioma: [weglot_switcher]

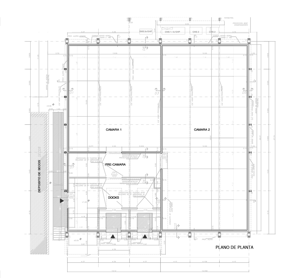
Centro Logístico

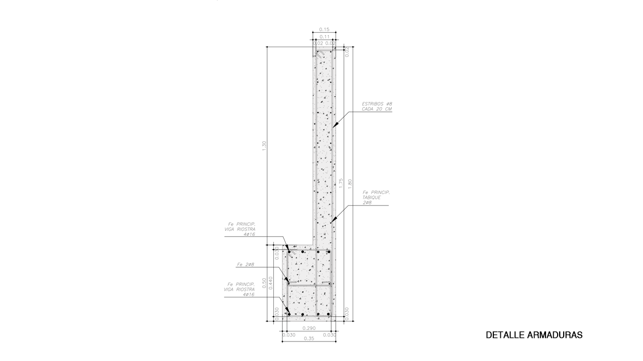
«Si la inspiración es el momento previo a la creación, el detalle constructivo es lo que la hace posible…» Mies van der Rohe

Proyecto / Dirección Técnica

Superficie:  1400 m2

Ubicación:  Mercedes – Buenos Aires, Argentina

Año: 2011

 

 

 

Categoría:
Etiquetas: