Quobim

Somos un Equipo Integral de Arquitectura e Ingeniería conformado por profesionales para el proceso de diseño, desarrollo y ejecución de sus proyectos.

Llámenos al +54 9 351 663-4643

Dr. Mariano Castex 224 X5003GGF, Córdoba, AR

info@quobim.com

Seleccione Idioma: [weglot_switcher]

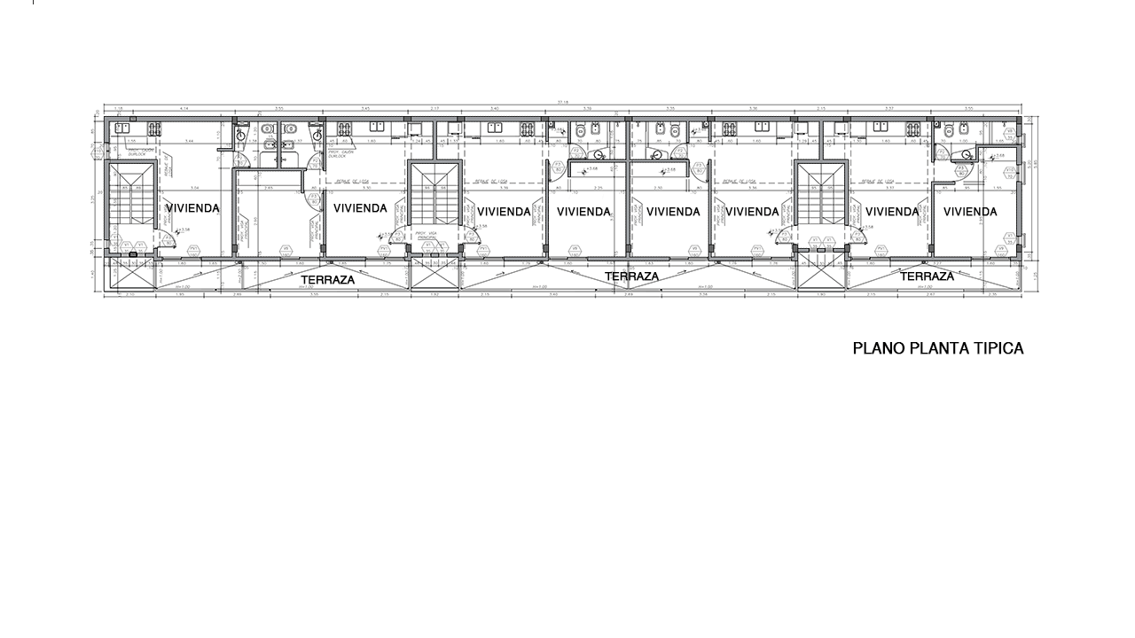
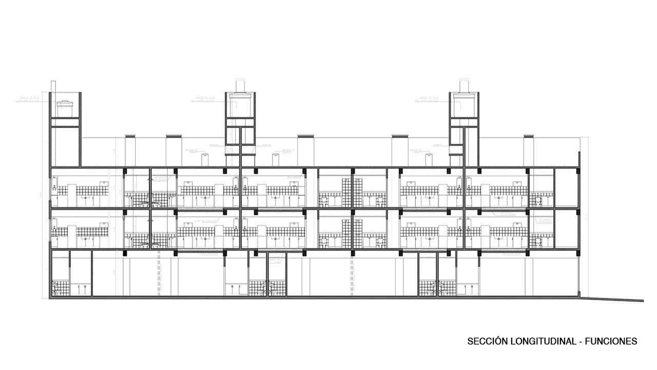
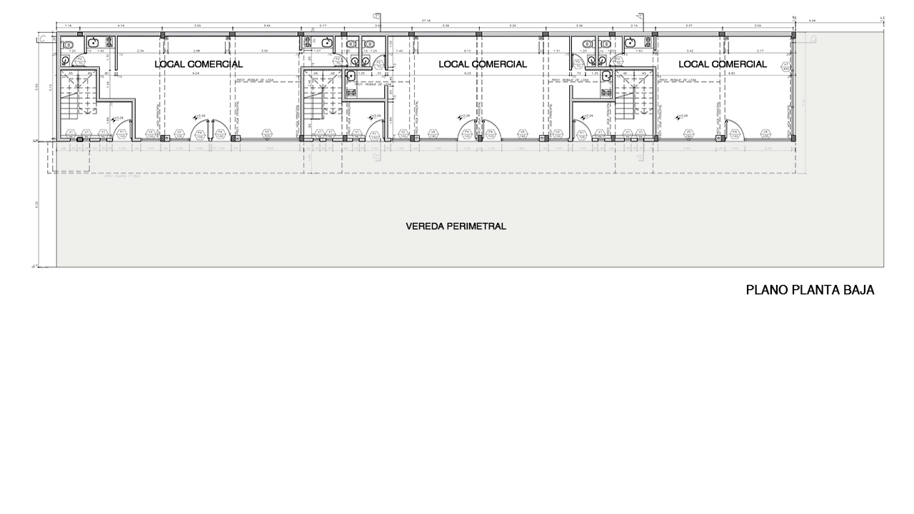
Vivienda Colectiva Santiago del Estero

«La Arquitectura es acto social por excelencia, arte utilitario, como proyección de la vida misma, ligada a problemas económicos y sociales y no únicamente a normas estéticas. (…) Para ella, la forma no es lo más importante:su principal misión: resolver hechos humanos». Carlos Raúl Villanueva

Proyecto

Superficie:  880 m2

Ubicación:  Córdoba, Argentina

Año: 2010

 

Categoría:
Etiquetas: